Mieszkanie z histroią
Lokalizacja tej niewielkiej przestrzeni jest co najmniej niebanalna: znajduje się ona dokładnie w miejscu, w którym w 1870 roku Auguste Bartholdi i Eugène Viollet-le-Duc zaprojektowali nowojorską Statuę Wolności. Sto lat później warsztaty te, położone w XVII dzielnicy Paryża, ustąpiły miejsca budynkowi mieszkalnemu, w którym obecnie mieści się interesujące nas mieszkanie. Dla młodej rodziny biuro LIEU Architecture zaprojektowało wnętrze nowoczesne, ale zdecydowanie nawiązujące do epoki, w której powstał budynek. Chętnie wykorzystano charakterystyczne dla lat siedemdziesiątych materiały – od stali nierdzewnej po ciemne drewno, całość podkreślone kilkoma jaskrawopomarańczowymi akcentami — to ulubiony kolor właścicieli.
Ściana ze stali nierdzewnej, łącząca w sobie design i funkcjonalność, stanowi najbardziej charakterystyczny element tego niewielkiego wnętrza. Fotel LC2 projektu Le Corbusiera, pomarańczowe krzesło Wassily Marcela Breuera, stół Tulipe zaprojektowany przez Eero Saarinena. Zdjęcie: Jean-Baptiste Thiriet.
Ściana ze stali nierdzewnej jako charakterystyczny element wystroju
Pierwszym krokiem było otwarcie salonu, by stworzyć przestrzeń zaprojektowaną na wzór loftu. „Aby podkreślić ideę dużej przestrzeni stworzyliśmy ścianę ze stali nierdzewnej, która biegnie od drzwi wejściowych aż po drugą stronę salonu”, wyjaśnia Justin Meuleman, założyciel LIEU Architecture. Wyzwaniem było opracowanie wyrazistej estetyki, która przykuje wzrok do tej części mieszkania, a jednocześnie pozwali ukryć elementy techniczne, takie jak przewody wodociągowe i, co najważniejsze, spełni różnorodne funkcje (to wielki atut w małej przestrzeni). Znalazło się tu miejsce na wieszak na ubrania, lustro, wiele miejsca do przechowywania na ruchomych półkach, które można dostosowywać do aktualnych potrzeb. „Do tej ściany można przymocować różnorodne drobne elementy, aby stworzyć regał – taki jak w sklepie, ale na skalę domową”, zaznacza architekt.
Ściana ze stali nierdzewnej biegnie od przedpokoju (ławka, lustro, wieszak) aż do końca salonu. Zdjęcie: Jean-Baptiste Thiriet.
Moduł z drewna wenge oddziela salon od kuchni, ukrywając w sobie szafki oraz bar. Zdjęcie: Jean-Baptiste Thiriet.
Najważniejszy element: zaskakująca ścianka-bar
Naprzeciwko tej ściany znajduje się kolejny charakterystyczny element mieszkania: moduł z drewna wenge, który również pełni różne funkcje. Przede wszystkim służy jako ścianka oddzielająca część dzienną od kuchni, którą Justin Meuleman zaokrąglił, aby stała się czymś więcej niż tylko ścianą i pełniła funkcję ozdobną. Właściciele, miłośnicy alkoholi, a zwłaszcza whisky, mają wewnątrz modułu bar zaprojektowany na wzór dawnego wagonu kolejowego. „Ten bar otwiera się jak kufer, w którym odkrywa się skarby: kolekcję alkoholi z całego świata”, opisuje projektant. Obity fornirem z drewna wenge, uzupełniony lustrem na tylnej ścianie wnęki, mebel ma bardzo dyskretne drzwiczki, elegancko wtapiające się w jego linie.
Moduł kryje bar zaprojektowany na wzór wagonu kolejowego. Zdjęcie Jean-Baptiste Thiriet.
Po drugiej stronie ścianki działowej znajduje się kuchnia. Zdjęcie: Jean-Baptiste Thiriet.
Wnętrze-zewnętrze
Z jednej strony przestrzeni salonowej znajduje się kompaktowa kuchnia w stylu paryskim, wyposażona w schowki wbudowane w szafkę oraz duże lustro, które odbija ogromne okna. „Podobnie jak wiele budynków z lat 70., ten również posiada bardzo ładne aluminiowe okna, które chcieliśmy podkreślić”, dodaje architekt. Te przeszklone okna umożliwiają ponadto dostęp do dużego tarasu o powierzchni 28 metrów kwadratowych. „W sezonie letnim przestrzeń ta jest całkowicie otwarta, tworząc jeden wielki salon obejmujący taras. To znacznie powiększa mieszkanie”, opisuje projektant.
Salon przechodzi płynnie w taras o powierzchni 28 m². Zdjęcie: Jean-Baptiste Thiriet.
Studio LIEU zamontowało osłony zapewniające prywatność na dużym tarasie. Zdjęcie: Jean-Baptiste Thiriet.
Część sypialna w stylu minimalistycznym
„W części sypialnej postawiliśmy na prostotę”, wyjaśnia Justin Meuleman. Ponieważ pokoje mają już odpowiednie proporcje, które zawdzięczają pomysłowości architektów z czasów powstania budynku (powstawały wtedy dobrze zaprojektowane budynki o funkcjonalnych planach), jedynie ścianka działowa została dostosowana do kształtu litery „S”, aby można było w niej zamontować schowki. Drewno wenge pojawia się w sypialni rodziców na zagłówku łóżka, a także w łazience, zapewniając w ten sposób wizualną ciągłość z częścią dzienną. Stal nierdzewną także można dostrzec w postaci pojedynczych akcentów – na przykład postaci klamek. Podłoga pokryta jest lakierowanym mikrocementem wzbogaconym włóknami. To ekonomiczne i wytrzymałe rozwiązanie stosowane zazwyczaj w sklepach i restauracjach. Skąd teb pomysł? „Zaakceptowaliśmy fakt, że znajdujemy się w budynku z lat 70., szanowaliśmy jego zasady i postanowiliśmy ujednolicić całe mieszkanie”, podsumowuje Meuleman. Dla odmiany i w hołdzie dla fantazji łazienka jest w całości pomalowana na pomarańczowo – to „zabawny akcent”, który zręcznie dopełnia projekt, spełniając życzenia właścicieli.
Drewno wenge nadaje zagłówkowi łóżka w głównej sypialni stonowany wygląd. Zdjęcie: Jean-Baptiste Thiriet.
Toaleta – wesołe i niecodzienne pomarańczowe pudełko, stanowiące kontrast w stosunku do części sypialnej. Zdjęcie: Jean-Baptiste Thiriet.

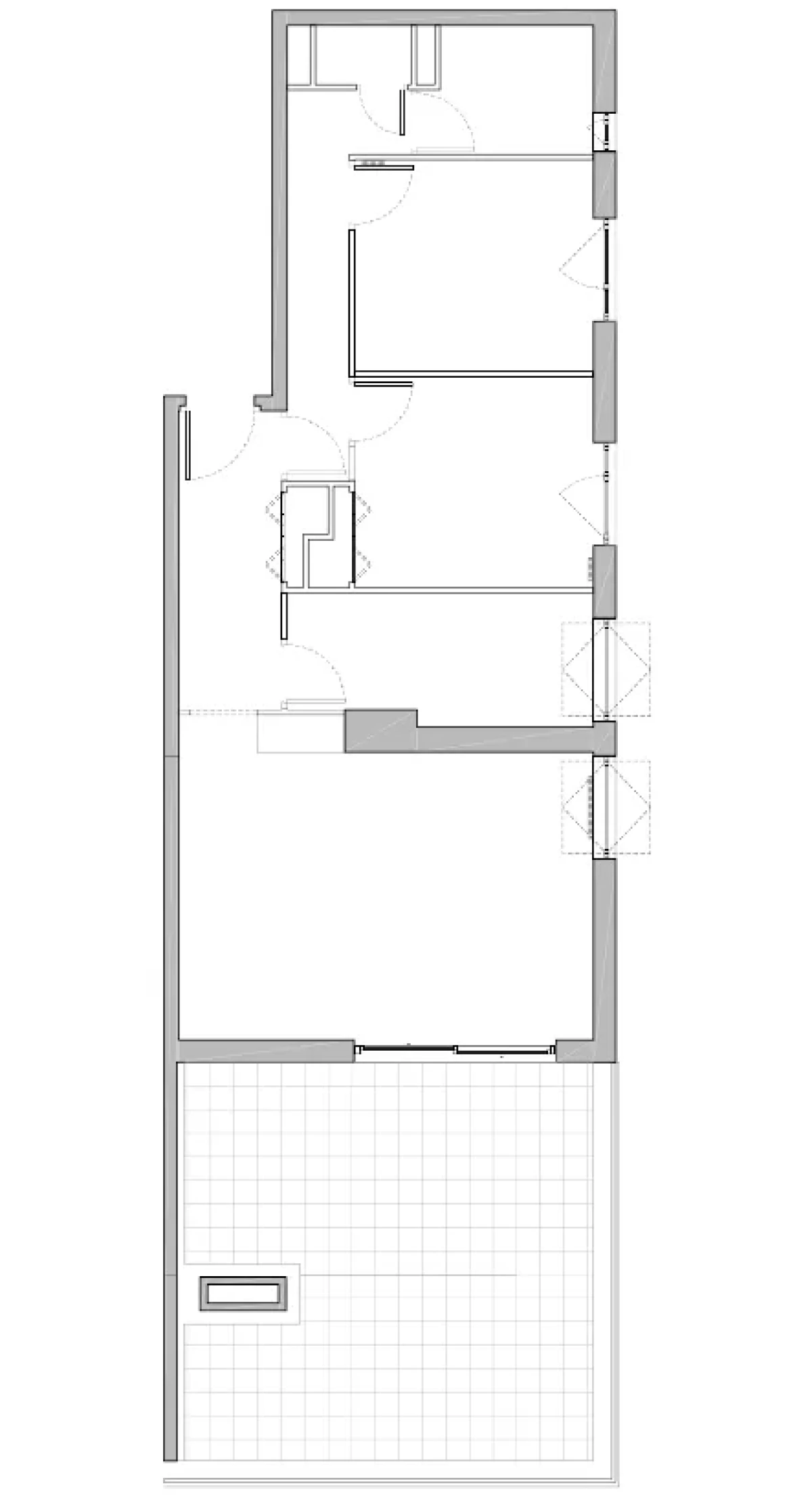
Plan mieszkania przed remontem.

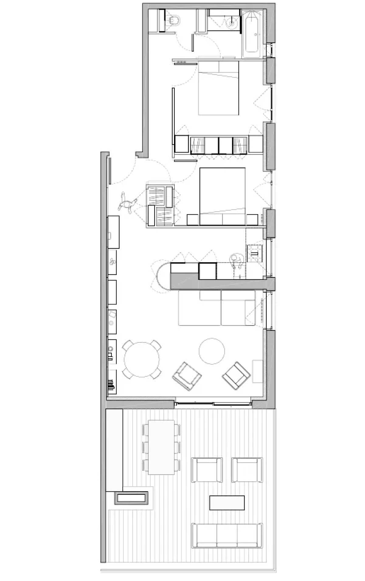
Plan mieszkania po remoncie.
LIEU Architecture : @lieu_architecture
Artykuł oryginalnie ukazał się na stornie AD France.
Zobacz także:
Modernistyczna kawalerka w Paryżu